
Casa Poliedro
· Cascais 2025 – Volume Arquitecture Lisbon Studio ·
- Moradia T4;
- Moradia Germinada;
- 4 casas de banho;
- Terraços;
- Varandas;
- Lugar de Anexo;
- Armários embutidos;
- Arrecadação;
- Aquecimento individual,
- Certificação energética: A.

Render Demonstrativo da obra.




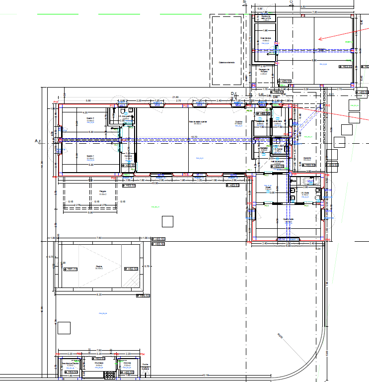
Casa Picão
· Azeitão 2025 – Volume Arquitecture Lisbon Studio ·
- Moradia T3;
- Moradia Unifamiliar;
- 4 casas de banho;
- Terraços;
- Varandas;
- Lugar de Anexo;
- Armários embutidos;
- Arrecadação;
- Garagem;
- Piscina;
- Aquecimento individual,
- Certificação energética: A.
- Render Demonstrativo da obra.

Esta pode ser a sua casa de sonho!

